Tel: 0152 034 110 30
Email: info@jbp-berlin.de
.png)
![]() | ![]() | ![]() |
|---|---|---|
![]() |
Dachgeschossrohling in topsaniertem Altbau *Baugenehmigung liegt vor*
Objektart:
Baujahr:
Zimmer:
Wohnfläche:
Heizungsart:
Ausstattung:
Energieinformation:
Lage:
Dachgeschossrohling
ca. 1908
6 Zimmer (individuell)
ca. 315 qm (aufteilbar in 2 Wohnung)
Öl
+ Fahrstuhl
+ Dachgarten ca. 115 qm
+ topsanierter Altbau
+ Blick ins Grüne
146,00 kWh/(m²*a)
Preis: 495.000,00 EUR
Objektbeschreibung
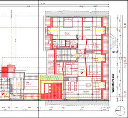
Der Dachgeschossrohling befindet sich in einem topsanierten Altbau in der fünften Etage eines Vorderhauses. Eine Baugenehmigung für den Ausbau liegt vor. Genehmigt wurden zwei Wohnungen mit 131,30 qm und 109,35 qm.
Die Bruttogeschossfläche beträgt ca. 315 qm und weiteren ca. 115 qm für einen Dachgarten.
Ein Fahrstuhl ist vorhanden (hält auf halber Etage).
Lage
Das Objekt befindet sich im Herzen von Berlin-Moabit in einer grünen und verkehrsberuhigten Seitenstraße.
Die Anbindung an den öffentlichen Nahverkehr ist mit dem U-Bahnhof Birkenstraße (U9), und dem S-Bahnhof Beusselstraße (S41, S42, S46) und verschiedenen Buslienen nahezu ideal.
Sonstiges
Alle Angaben sind ohne Gewähr und basieren ausschließlich auf den uns von unserem Auftraggeber übermittelten Informationen. Irrtum und Zwischenverkauf vorbehalten.
Beim Erwerb der Immobilien fallen 7,14% inklusive Mehrwertsteuer des beurkundeten Kaufpreises an. Diese Provision ist verdient und fällig bei Abschluss des Kaufvertrages durch den Käufer.



